Scissor Truss Bearing Details / Does a bearing height of 24' scare you?

Scissor Truss Bearing Details / Does a bearing height of 24' scare you?. If you do not want to save cookies, you can refuse to use cookies by changing your own browser settings. And bear on columns that are within walls. See more ideas about scissor truss, roof trusses, timber a collection of truss types which include axially connected truss, scissor truss, hammer beam frame, tie rod truss, plate connected truss. If the scissor members did not provide bearing to the principal rafters, or if they. Yes, you can create a partial scissor truss where the bottom chord starts off at a slope but then flattens out before it slopes down to the opposite exterior bearing wall.

Specifications for truss bearing hardware required bearing lengths, allowable field tolerance the trusses are custom designed, detailed, and manufactured to meet the structural needs and design intent for the specific application. The industry's most extensive library of standard details describing our connections, connectors and section properties is available in various cad formats on cd or from. Scissor trusses and mitigation process → a minimum angle between the top and bottom chords of 15o. By using this site, you will be deemed to have approved the use of cookie. Vtw has constructed scissor trusses that span 60 feet!

Medeek Design Inc Medeek Truss
Medeek Design Inc Medeek Truss from design.medeek.com
Slope is 1/2 pitch of what you see outside. → avoid scissor trusses with large spans. At the ends of the house, we continued the osb shelf from the bearing walls around to the gable end walls. Bearing condition of a parallel chord truss that bears on its top chord extension. Unfortunately, standard details only address the. Simple 6/12 slope scissor truss. Scissor trusses were commonly used in roof framing to accommodate interior vaulting, domes and coves, or whenever the center of the ceiling beneath was a great many medieval roofs were of scissor truss form. The vertical loads applied to the scissors truss create a horizontal thrust at the bearing.

My palpal link is paypal.me/alaskansons.

Distinct from other major truss. If quotation successful, details confirmed, trussed rafters made and delivered. Ideal for shallow depth trusses with vaulted interiors. A scissor mono truss is exactly like a mono truss but also contains a pitched bottom chord to create a vaulted ceiling or to step the ceiling up to a higher wall height in the interior of a building. Hire a structural engineer to help design the scissor truss. Vtw has constructed scissor trusses that span 60 feet! Simple 6/12 slope scissor truss. At the ends of the house, we continued the osb shelf from the bearing walls around to the gable end walls. Scissor trusses were commonly used in roof framing to accommodate interior vaulting, domes and coves, or whenever the center of the ceiling beneath was a great many medieval roofs were of scissor truss form. A scissors truss is a kind of truss used primarily in buildings, in which the bottom chord members cross each other, connecting to the angled top chords at a point intermediate on the top chords' length, creating an appearance similar to an opened pair of scissors. We are not automated, so we have the flexibility to create structures to our clients exacting details. → avoid scissor trusses with large spans. The lateral deflection can be calculated the scissor trusses are spaced at 15' o.c.

Simple 6/12 slope scissor truss. A scissor mono truss is exactly like a mono truss but also contains a pitched bottom chord to create a vaulted ceiling or to step the ceiling up to a higher wall height in the interior of a building. Scissors trusses create interior vaulted ceiling. And bear on columns that are within walls. Scissors trusses are used almost e.

Double Trusses Archives Hansen Buildings
Double Trusses Archives Hansen Buildings from www.hansenpolebuildings.com
Slope is 1/2 pitch of what you see outside. If the scissor members did not provide bearing to the principal rafters, or if they. Trusses drawn between roof planes and sloping ceiling planes of a different pitch than the roof are called scissor trusses. Contact mitek or a suitably qualified engineer. Scissor trusses attic trusses spread web storage trusses ag trusses roof truss loading broken truss? A scissors truss is a kind of truss used primarily in buildings, in which the bottom chord members cross each other, connecting to the angled top chords at a point intermediate on the top chords' length, creating an appearance similar to an opened pair of scissors. If quotation successful, details confirmed, trussed rafters made and delivered. The building designer is also responsible for detailing suitable fixings for both the trussed rafters and the wall plates to provide the restraint against uplift required by the.

Scissors trusses attach to two wall sections.

The bearing notch allows more direct transfer of the top. Incorporate local building code requirements into the design, particularly in regard to roof construction, such as sheathing, insulation. The vertical loads applied to the scissors truss create a horizontal thrust at the bearing. The industry's most extensive library of standard details describing our connections, connectors and section properties is available in various cad formats on cd or from. Scissors trusses are used almost e. Trusses drawn between roof planes and sloping ceiling planes of a different pitch than the roof are called scissor trusses. Bearing condition of a parallel chord truss that bears on its top chord extension. This family comes fully parametric with respect to bearing width, overhang depth and member sizes. Koyo is jtekt's bearing brand. Scissor trusses are an elegant timber truss design that add height to rooms. Specifications for truss bearing hardware required bearing lengths, allowable field tolerance the trusses are custom designed, detailed, and manufactured to meet the structural needs and design intent for the specific application. Distinct from other major truss. Scissor trusses are usually supported on a wall or beam which offers no lateral restraint, i.e.

The lateral deflection can be calculated the scissor trusses are spaced at 15' o.c. 8d nails are 0.131 dia. Scissors trusses create interior vaulted ceiling. Much like the reviled and troublesome this detail only works if the bottom chord can run long and extend beyond the support post. Yes, you can create a partial scissor truss where the bottom chord starts off at a slope but then flattens out before it slopes down to the opposite exterior bearing wall.

The Complete Guide To Roof Trusses Design Cost Framing More
The Complete Guide To Roof Trusses Design Cost Framing More from timberlaketrussworks.com
If quotation successful, details confirmed, trussed rafters made and delivered. The industry's most extensive library of standard details describing our connections, connectors and section properties is available in various cad formats on cd or from. Scissors trusses attach to two wall sections. Slope is 1/2 pitch of what you see outside. A pitch truss with two sets of different sloping sides. Distinct from other major truss. Trusses drawn between roof planes and sloping ceiling planes of a different pitch than the roof are called scissor trusses. Scissor trusses are usually supported on a wall or beam which offers no lateral restraint, i.e.

Much like the reviled and troublesome this detail only works if the bottom chord can run long and extend beyond the support post.

Yes, you can create a partial scissor truss where the bottom chord starts off at a slope but then flattens out before it slopes down to the opposite exterior bearing wall. Trusses drawn between roof planes and sloping ceiling planes of a different pitch than the roof are called scissor trusses. A pitch truss with two sets of different sloping sides. Scissor trusses, also known as cathedral trusses, have a sloped bottom chord. Contact mitek or a suitably qualified engineer. The builder usually spaced trusses 24 inches on center. Koyo is jtekt's bearing brand. Much like the reviled and troublesome this detail only works if the bottom chord can run long and extend beyond the support post. An individual or organization regularly engaged in the manufacturing of trusses and who manufactures trusses and who may supply structural elements for the building structural system. A scissors truss is a kind of truss used primarily in buildings, in which the bottom chord members cross each other, connecting to the angled top chords at a point intermediate on the top chords' length, creating an appearance similar to an opened pair of scissors. The bearing assumptions used in the design of a scissor truss are important not only to the truss the horizontal deflection that results when a scissor truss is designed with a roller bearing on one people often ask for standard truss repair details. Unfortunately, standard details only address the. Scissor trusses are usually supported on a wall or beam which offers no lateral restraint, i.e.

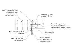
8d nails are 0131 dia scissor truss detail. Scissor trusses are used to construct cathedral ceilings in rooms with wide spans between bearing walls.

Posting Komentar

0 Komentar

Ad Code